FULLY FURNISHED 5 BED STUDENT HOUSE 10 MINUTES FROM CITY CENTRE
NO DEPOSIT nor ADMIN FEES
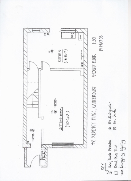
REGENCY PLACE, off MILITARY ROAD, CANTERBURY
Canterbury Christ Church University – ½ mile * University of Kent Canterbury –
1¾ miles * UCCA Canterbury – 0.6 miles * Canterbury City Centre – ¾ mile * Canterbury West – 1.3 miles Canterbury East – 1.4 miles * Sainsbury’s – 5 minutes * Bus Routes: Unibus to UKC & City Centre – 250m
5 BEDROOMS * SHOWER ROOM 1 with MULTI YET SHOWER * 2nd SHOWER ROOM with further MULTI-JET SHOWER * 19’9 SITTING ROOM * 14’9 FITTED OAK KITCHEN/BREAKFAST ROOM with built-in Hob & Oven, Washing Machine, Fridge & Freezer * TV points to all bedrooms * Broadband Connections * FULLY FURNISHED WITH HIGH QUALITY FITTINGS * GAS FIRED CENTRAL HEATING * OFF ROAD PARKING FOR 2 CARS * UNLIMITED ROADSIDE PARKING * PRIVATE GARDEN
RENT: £79.95 to £89.00pw - average £85.38 PER WEEK EACH- (£369.98 pcm each).
TO LET : 1st July 2017 to 30th June 2018.
Half Rent- July & August 2017
To Be Redecorated & New Carpets Fitted in July 2017
Average Bills for Gas, Electricity, Water & Internet- £25/30 per month each
TO BE LET AS A WHOLE
To View Call David Todd 07831 891750 or email david.todd@highwood.info

42 Regency Will Be Fully Redecorated in Spring/Summer 2017 in the same Colours as 16 Regency above



Quality Pine Bedroom Furniture- wardrobes, beds desks etc Throughout





